Small House in Champagne
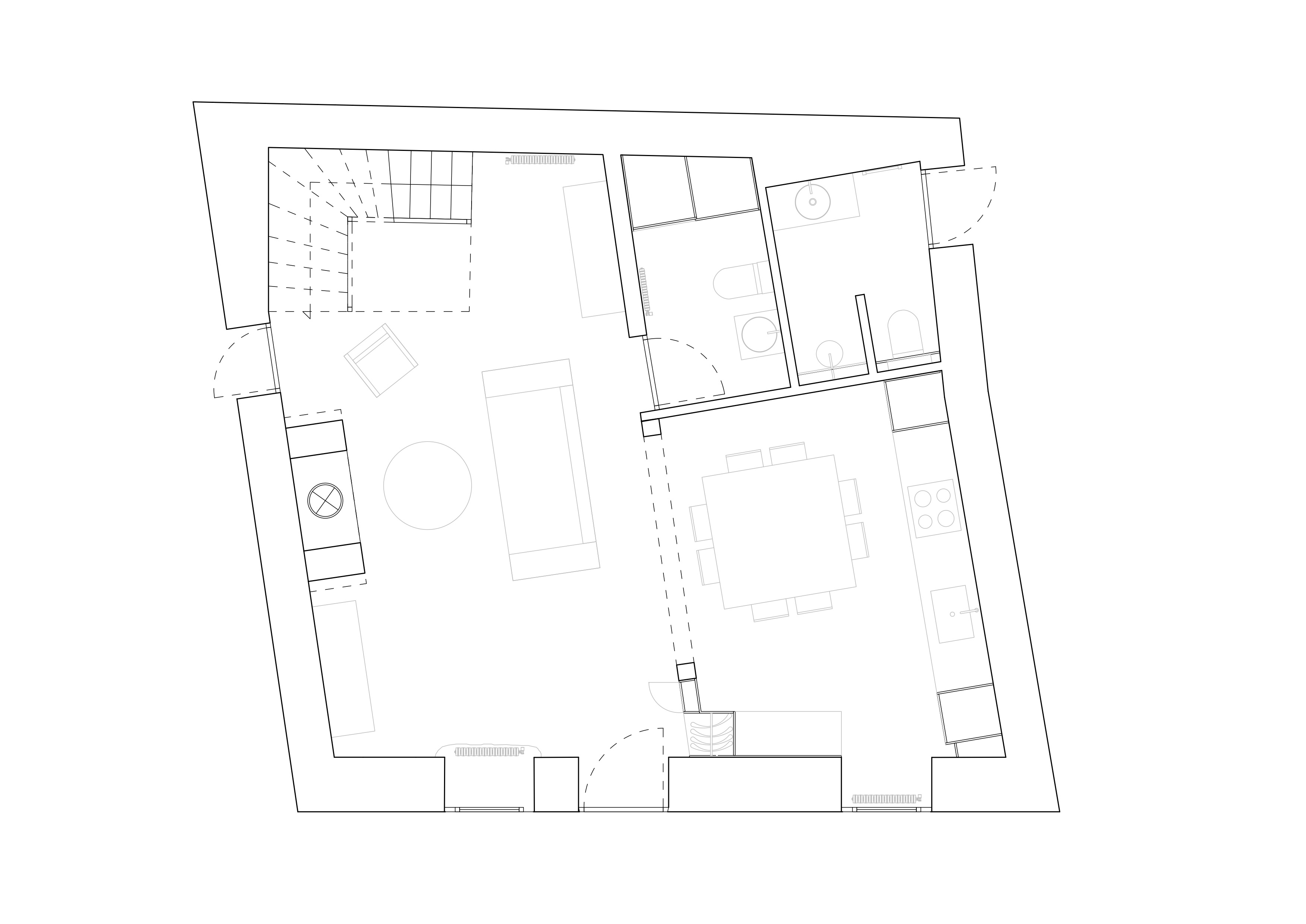
Set in a quiet village in Champagne, this 80-square-meter house has been carefully restored to combine old charm with modern comfort. Original elements, from weathered beams to stonework have been preserved, giving the home a timeless feel. At its center, a fireplace creates a warm and welcoming space. The newly designed kitchen, features a sleek bar tailored for champagne.
Photos Stephen Sideroglou
2024-2025
Photos Stephen Sideroglou
2024-2025

© Theo Galliakis 2026